Lochmara

8.7m x 3.6m + 7.2m x 3.6m
$214,000 inc GST

Deck, Pergola and conservatory are optional extras not included in price.

Introducing the Lochmara: A Tiny Home with Big Possibilities

The Lochmara isn’t just a home – it’s a lifestyle. Are you ready to embrace a future of smart, sustainable, and stylish living?

The Lochmara consists of a 8.7m x 3.6m placed next to a 7.2m x 3.6m cabin in an L shape design, both have custom built skids for easy transport and placement. Both cabins are architecturally designed and built to the highest quality, triple lined with ply and colour steel for rigidity and double glazed aluminium joinery. Walls, flooring and ceiling are fully insulated and everything is built to building code by a Licensed Building Practitioner, which is required when applying for a building consent.

Everything can be customised to suit your needs.
Optional extras – adding a deck, pergola and conservatory which we are happy to help organise.

Specifications

Shoreline Cabins are made using top-quality materials.

This design consists of a consists of a 8.7m x 3.6m (4.2m with soffit and wing walls) placed next to a 7.2m x 3.6m cabin in an L shape design (4.2m with soffit and wing walls)

Skids or bearers – 150×50 H4 x6

Floor joists – 150×50 H3.2 KD

Floor insulation – 100mm Poly R2.5

All fixings sub floor stainless steel

Flooring – 19mm H3.2 Ply – Jacobsen Traffic 250 Commercial Vinyl Flooring/Wood Look 5 colour options

All timber above floor – H1.2 90×45 wall framing

External wall cladding – Colour Steel reverse slim clad over 7mm Barrier ply ridged air barrier

External front wall cladding – H3 ban sawn pine weather boards on 20mm cavity

Wall insulation – R2.8 pink batts (Building code compliant)

Roof insulation – R5.6 pink batts (Building code compliant)

Windows – Double Glazed Aluminium – Thermal Extra Low E/clear

Roofing – Colour Steel 5 Rib

Internal wall and ceiling linings – 9mm Ply, H3 behind shower

Internal paint colour (ceilings, walls & trim, doors) – Dulux Half Cardrona (Natural White)

Recessed LED Down lights

Light and power switches

Toilet

Bathroom vanity and extractor fan

Shower 900x900mm

Mirror, Towel rail, Toilet roll holder, Toilet x 2

Gas califont water heater

Kitchen featuring:
– 4 burner hob
– Oven
– Splashback
– Ducted range hood

TV outlet

Smoke alarms

Wardrobes

Heatpump (optional extra)

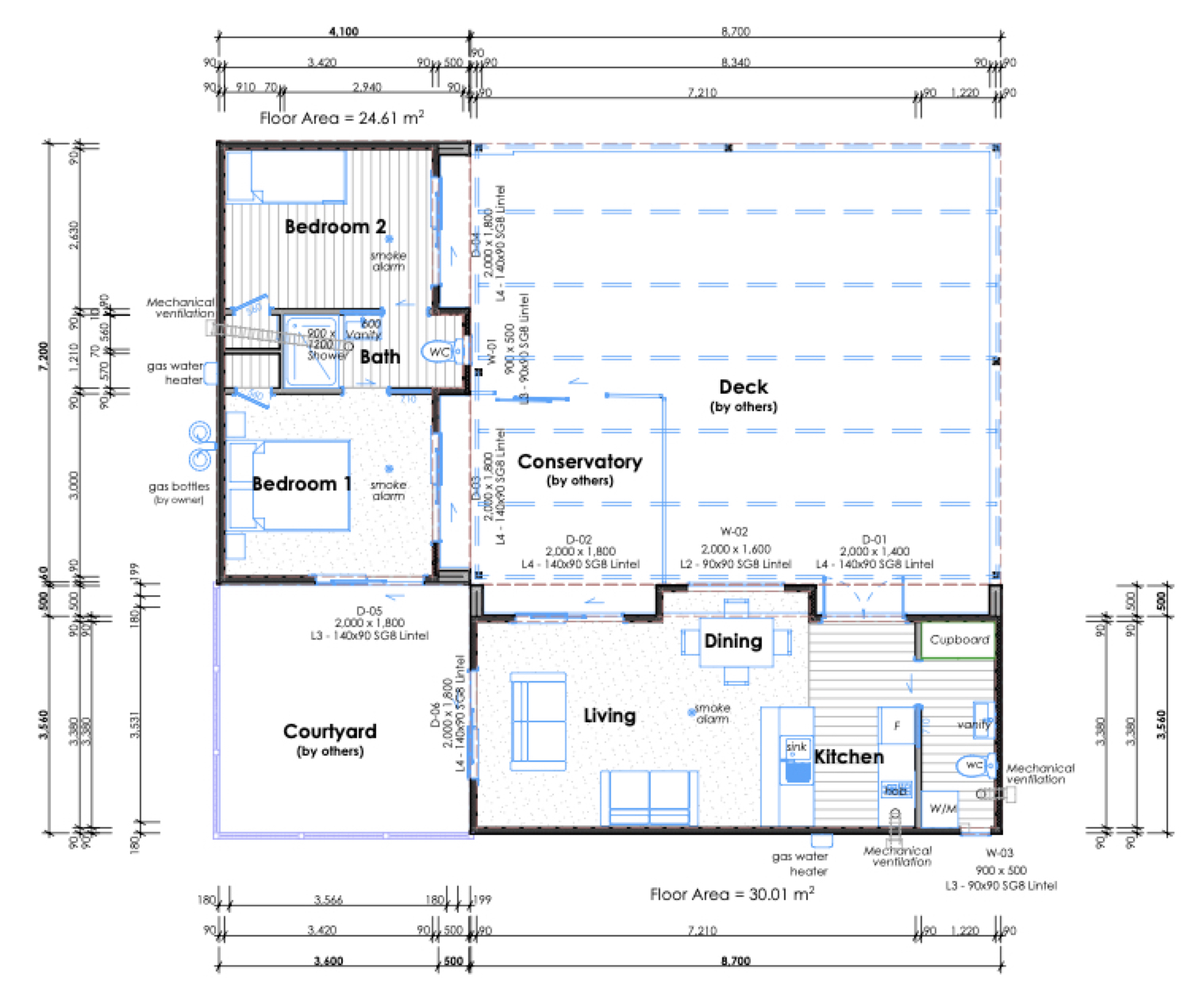
Floor plan
[Lochmara Floor Plan]
Additional Information

We manage the entire process from design through to completion, with building-consent standard plans available on request.

Granny Flats up to 70m²Building Consent Exemption – Effective 15 January 2026

To qualify, granny flats must:

  • Be new, standalone, and single-storey (no mezzanine)
  • Be classified as Housing – Detached Dwelling under the Building Code
  • Fully comply with all Building Code requirements
  • Be intended for one household or family
  • Be designed and built by licensed professionals
  • Upon completion, homeowners must submit all relevant records and certificates to the council to confirm the work was completed by appropriate licensed professionals and complies with the Building Code.

Licensed & Compliant

All work is carried out or supervised by Licensed Building Practitioners, along with licensed plumbers, drainlayers, gasfitters, and electricians.

Designs over 70 m2 require standard consenting.

All Shoreline Cabins with plumbing are eligible for a Code Compliance Certificate (CCC).

Transport

Transport cost is not included in the price of your cabin. The delivery is based on the size of your cabin, location, and level of difficulty. We can assist in putting you in touch with delivery companies.

Site Preparation

It is the sole responsibility of the customer to ensure that the site upon which the cabin is to be delivered is accessible, suitable, and prepared prior to delivery. It is best to contact your local council to get all the information you require with regards to this.

Prices include GST and are subject to change at any time.

Prices exclude Code of Compliance certificate.

Prices exclude connections to services and drainage, work to prepare site, driveways, patios and decks, window coverings.

Specifications

All Shoreline Cabins are made using top-quality materials.

 

Cabin Component/Area Specification / Material Notes / Size
Overall Design Dual-Cabin Layout (Side-by-Side) Cabin 1: 8.7m x 3.6m (4.2m with soffit/wing walls)
Cabin 2: 7.2m x 3.6m (4.2m with soffit/wing walls)
Sub-Floor Structure Skids or Bearers 150×50 H4 x6
Floor Joists 150×50 H3.2 KD
Floor Insulation 100mm Poly R2.5
Sub-Floor Fixings All fixings stainless steel
Flooring Substrate 19mm H3.2 Ply
Finish Jacobsen Traffic 250 Commercial Vinyl Flooring / Wood Look (5 colour options)
Wall Framing All Timber Above Floor H1.2 90×45 wall framing
Wall Insulation R2.8 pink batts (Building code compliant)
Exterior Cladding Main External Walls Colour Steel reverse slim clad over 7mm Barrier ply ridged air barrier
External Front Wall H3 ban sawn pine weather boards on 20mm cavity
Roof Roofing Material Colour Steel 5 Rib
Roof Insulation R5.6 pink batts (Building code compliant)
Windows Specification Double Glazed Aluminium – Thermal Extra Low E/clear
Internal Linings Walls and Ceilings 9mm Ply (H3 behind shower)
Paint Colour Dulux Half Cardrona (Natural White)
Electrical / Lighting Lighting Recessed LED Downlights
Power Light and power switches
Entertainment TV outlet
Safety Smoke alarms
Kitchen Features Appliances 4 burner hob, Oven, Ducted range hood
Finishes Splashback
Bathroom Features Fixtures Toilet, Bathroom vanity, Shower 900x900mm
Accessories Mirror, Towel rail, Toilet roll holder, Toilet x 2
Ventilation Extractor fan
Water Heating Water Heater Gas califont
Other Features Storage Wardrobes
Optional Extra Heatpump
Floor plan
[Lochmara Floor Plan]
Additional Information
We manage the entire process from design through to completion, with building-consent standard plans available on request.

Granny Flats up to 70m²

Building Consent Exemption – Effective 15 January 2026

To qualify, granny flats must:

  • Be new, standalone, and single-storey (no mezzanine)
  • Be classified as Housing – Detached Dwelling under the Building Code
  • Fully comply with all Building Code requirements
  • Be intended for one household or family
  • Be designed and built by licensed professionals
  • Upon completion, homeowners must submit all relevant records and certificates to the council to confirm the work was completed by appropriate licensed professionals and complies with the Building Code.

Licensed & Compliant

All work is carried out or supervised by Licensed Building Practitioners, along with licensed plumbers, drainlayers, gasfitters, and electricians.

Designs over 70 m2 require standard consenting.

All Shoreline Cabins with plumbing are eligible for a Code Compliance Certificate (CCC).

Transport

Transport cost is not included in the price of your cabin. The delivery is based on the size of your cabin, location, and level of difficulty. We can assist in putting you in touch with delivery companies.

Site Preparation

It is the sole responsibility of the customer to ensure that the site upon which the cabin is to be delivered is accessible, suitable, and prepared prior to delivery. It is best to contact your local council to get all the information you require with regards to this.

Prices include GST and are subject to change at any time.

Prices exclude Code of Compliance certificate.

Prices exclude connections to services and drainage, work to prepare site, driveways, patios and decks, window coverings.